37岁女子的96㎡小家,氛围感爆棚!

空间设计出品┃转载请注明来源

来源:空间设计(ID:kongjiansheji88)

现代简约设计


每天给你分享一个案例设计

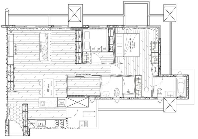
这套住宅 面积:96㎡(套内)

格局:33厅 2卫

人数:2大 2小

边间室内设计设计


1. 玄关设计:

受限于一入门右侧牆,先是内缩了柜体深度

再外推一道落差约 12 公分的进退面

塑造为乍看是两段式的柜面

于转折处,再收束一曲柔弧

消融了牆体厚沉感

也满足了收储鞋履、吊挂衣物的需求


落尘区落有一道低樑横生,为消弭樑面的存在感

延揽目光聚焦至隔屏

不仅巧隐线条切割线于樑边

并砌造出一道以童趣恐龙蛋为造型的椭圆柱隔屏

予以 1: 2.2 的比例,造为与前方相衔柜体的距离


更将六支立柱形成的屏风

从正 90 度角,每一根都以旋转 15 度的微幅之差

从左至右,悄悄将筛落的光影,织构了迷人的倒影

因为旋动的倾斜角

让屏风的宽幅得以成为柜体的两倍之多

精心镌刻的比例与转幅

浮显为穿梭入主场的隐形过渡区


2. 客厅设计:

从玄关缓渡至客厅时

以一座柜体衬作过渡空间的介质

顺沿廊道为断点之后,砌为淡柔色调的主景

选以轻盈样态的沙发

与正对的浮空样式下机柜互相搭衬,迸发出自然美感


进入公领域之后,会清楚发现藉由天花板高低差

谕示著流动不同区域的边界感

一如客厅上升、餐厅下降

在不同高低差之间

清楚引领各隅将赋予生活的情境质感


3. 游戏区设计:

仅砌作一道半高牆与客厅为界

侧边与书房相邻,则藉由一道长虹玻璃

在阅读办公时,保有隐私静谧,亦能常常看顾著幼童

同时考量因应孩子阶段性成长

便于未来变更为书房

将尺幅定调在可摆放一张单人床、一张书桌的大小


后侧量体砌以木质柜面,丰润的木调触感

给予小孩练习收纳、游玩时

都深感温润之美

上柜採以圆弧收折、下柜造以开放式格柜

并且利用半高牆一侧,贴覆为磁吸白板牆面

创造了嬉游、学习的多样性


4. 餐厨设计:

从远方一探,由系统柜、人造石筑起的中岛

与侧边冰箱柜正好连绵成 L 型

厨柜予以浅灰色调、中岛则是援引浅白底蕴

巧引色彩在幽微的变幻之间,谕示区域的分野

除了带入了实用机能,亦以写意之笔

使全室有了流动的韵律美感


5. 主卧设计:

为了避免一入门即见床

将床位置对调与入门口同向,并砌造一道短牆

延伸了玄关屏风的造型

以内凹元素围塑一地舒心卧眠

在宽度达 290 公分的床背牆

选用了深木色床背板,与浅色壁面形成烘托



主卧衣橱刻意覆上一抹墨绿色

让色彩底蕴浮显,跳色手法带入了延伸感

形成了 1:1 的平衡廓型,不仅遮掩了入门视线

也在在显现设计团队擅于透过细微的修润

勾勒出极大张力



6. 小孩房设计:

打造了双人加大的床铺尺度

后侧是一座大型衣柜,与下方抽屉柜面

一同构筑收纳量能的最大化

床背牆有一小段是卧榻的木质延伸

更引入了云朵造型的防撞软垫,推升了几分童趣



如果可以,请进入视频,点个关注


喜欢视频就点一下“赞”


(家居责编:拓荒牛 )